ChatsApp
U$S 349.000
Venta

Descripción

(FOTOS DE REFERENCIA DE MISMA TIPOLOGÍA EN TORRE 1)

Actualmente en construcción, se entrega en MARZO 26.

Unidad en Venta Torre 2 | Carrasco Boating

Piso 6 a estrenar!

Lo que estabas buscando en Carrasco Boating!

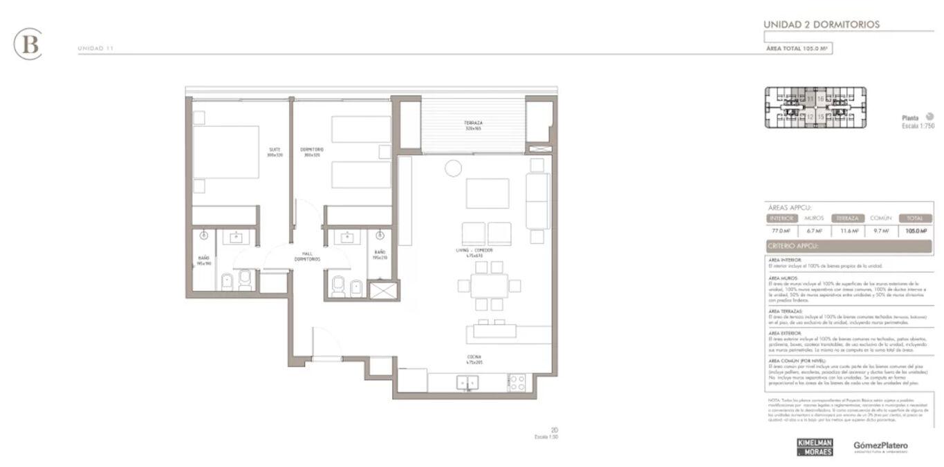
Venta de apartamento de 2 dormitorios en suite

Un edificio exclusivo frente al Lago Calcagno, con vistas inmejorables y amenities de primer nivel.

Características principales:
Piso 6 con orientación Este (sol de la mañana y vistas despejadas).

Amplio living comedor con cocina integrada, moderna y con gran capacidad de guardado.
Terraza con vistas al lago y a la costa, ideal para disfrutar del sol o compartir un asado con amigos.
2 dormitorios en suite, con máxima comodidad.
Garaje

Seguridad:
Perímetro protegido y portería física las 24 horas.

Amenities del edificio:
-Piscina interior y exterior climatizada}
-Sauna y solárium
-Gimnasio y sala de aparatos
-Espacio gourmet y salón de fiestas
-4 barbacoas con terrazas
-Business Center
-Sala de juegos para niños

¡Consulte!

Características de la propiedad

  • Habitaciones2 Habitaciones
  • BañosBaños: 2
  • SuperficieSuperficie: 105,00 m²
  • Superficie ConstruidaSuperficie Construida: 84,00 m²
  • Superficie BalconesSuperficie Balcones: 12m²
  • Dormitorios SuiteDormitorios en Suite: 2
  • GarageGarage: 1
  • PiscinaPiscina
  • ParrilleroParrillero
  • CalefacciónCalefacción: Aire acondicionado, Losa radiante
  • OrientaciónOrientación: Este
  • DisposiciónDisposición: Frente
  • Propiedad HorizontalPropiedad Horizontal
  • PisoPiso: 6
  • Aptos por pisoAptos por piso: 4
  • Pisos EdificioPisos Edificio: 17
  • Año de ConstrucciónAño de Construcción: 2026
  • SeguridadSeguridad: 24 horas
  • AscensorAscensor
  • LavaderoLavadero
  • Disposición: Frente
  • Orientación: Este
  • Lavadero: Si
  • Ascensor: Si
  • Seguridad: Si, 24 horas
  • Calefacción: Si, Aire acondicionado, Losa radiante
  • Parrillero: Si
  • Piscina: Si
  • Pisos edificio: 17
  • Aptos por piso: 4
  • Piso: 6
  • Propiedad horizontal: Si
  • Año de construcción: 2026
  • Tipo garage: Garage
  • Superficie terrazas: 12 m2
  • Superficie construida: 84 m2
  • Dormitorios en suite: 2

Contactate con nosotros

captcha

¿Quiénes somos?

Somos una empresa joven que utiliza las nuevas tecnologías para lograr mejores resultados. Entendemos las tendencias actuales para realizar estrategias integrales entre el mundo online y offline.